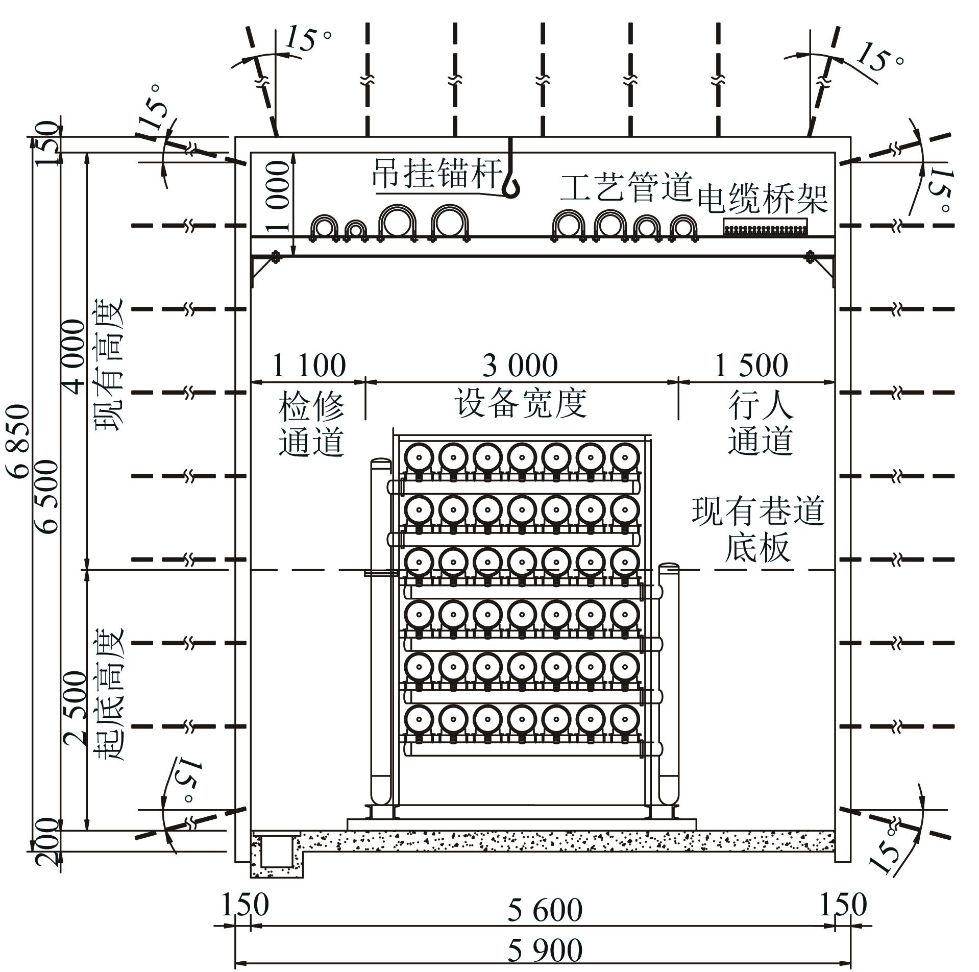
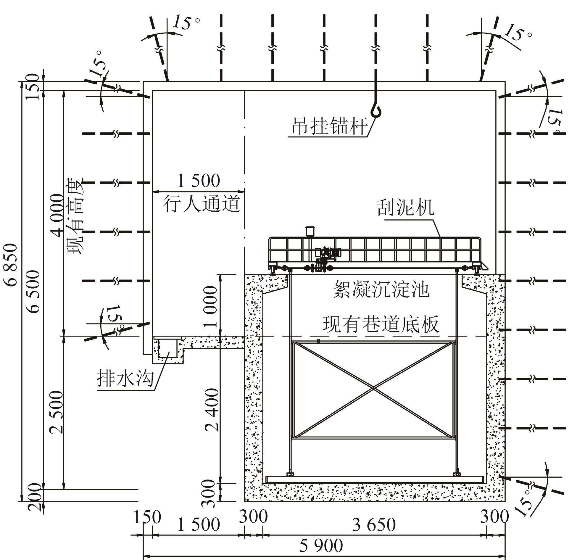
摘要:
近年来,国家对矿井水资源的重视程度不断加强,2024年发布关于加强矿井水保护和利用的指导意见,提出推进水质较好的矿井水井下处理、就地复用,作为井下防尘、设备冷却、乳化液配制用水的建议。目前,水质较好的矿井水井下就地回用处理已较为普遍,但针对高硬高矿化度矿井水开展井下深度处理并就地回用的工程相对较少。以纳林河二号矿井为例,针对井下高硬高矿化度、低浊度清水的水质特征,选用以反渗透为主的工艺进行深度处理,并根据水处理站位置选择及巷道设备布置原则进行工程建设。项目稳定运行3个月,反渗透产水率在65%以上,产水电导率稳定在60 μS/cm以下,完全满足井下液压支架除尘、乳化液调配及设备冷却等生产用水水质要求。对该项目运行成本及经济效益分析表明,对于开采深度较大的大型矿井,将矿井水就地处理并回用具有显著的经济优势,为陕蒙地区大型矿井中高矿化度的井下矿井水深度处理工程的建设实施提供借鉴。
关键词:
高矿化度矿井水,
井下脱盐工艺,
就地回用,
井下处理站布置,
经济效益
Abstract:
In recent years, the nation has been paying increasing attention to mine water resources. In the guidelines for the protection and utilization of mine water of 2024, a proposal has been made to promote the underground treatment and on-site reuse of mine water with better quality for underground dust control, cooling, and preparation of emulsions. At present, the on-situ reuse treatment of mine water with good water quality has become quite common. However, projects involving advanced on-situ treatment and reuse of high hardness and high salinity mine water remain are relatively scarce. Taking the Nalinhe No. 2 Mine as an example, the study addressed the water quality characteristics of high hardness, high salinity, and low turbidity of the underground water. The reverse osmosis-based process was selected for advanced treatment, and the project was constructed in accordance with principles for selecting the location of the water treatment station and arranging equipment in the roadway. The project had been operating stably for three months, with the reverse osmosis system achieving a water production rate of over 65% and conductivity of the produced water consistently below 60 μS/cm. The treated water fully met the quality of the production water used for the underground hydraulic support dust removal, emulsion preparation and equipment cooling. The analysis of the project operating costs and economic benefits revealed that the on-site treatment and reuse of mine water had significant economic advantages for large mines with considerable mining depths. The case provides a valuable reference for the implementation of advanced treatment projects targeting high-salinity underground mine water in large-scale mines located in the Shaanxi-Inner Mongolia region.
Key words:
high salinity mine water,
underground desalination process,
on-site reuse,
arrangement of underground treatment station,
economic benefit
中图分类号:
汪永彪, 王辛铜, 谢楠, 李选龙. 煤矿矿井水井下就地处理回用工程研究及应用[J]. 工业水处理, 2025, 45(11): 204-210.
Yongbiao WANG, Xintong WANG, Nan XIE, Xuanlong LI. Research and application of on-site treatment and reuse engineering for underground treatment of mine water[J]. Industrial Water Treatment, 2025, 45(11): 204-210.